Contact OUR FIRM for licensed general contracting and time tested experience in the design and build field. With over 70 projects designed and completed in San Francisco and the Bay area we have the expertise and knowledge to turn your visions into reality with cost effective and stunning results.

THE DESIGN AND BUILD PROCESS:

FIRST THE DESIGN STAGES:

SCHEMATIC DESIGN:  THE FIRST PHASE IN DESIGN PROCESS

THE EXISTING BUILDING LAYOUT AND PROPOSED BUILDING LAYOUTS ARE CREATED IN THIS STAGE

 

DESIGN DEVELOPMENT:   THE SECOND PHASE IN THE DESIGN PROCESS

THE APPROVED SCHEMATIC DESIGN IS FURTHER DEVELOPED IN THIS STAGE TO PROVIDE VISUAL INFORMATION ABOUT HOW THE DESIGN WILL LOOK.  3D MODELS ARE DEVELOPED IN THIS STAGE TO PRESENT PERSPECTIVE VIEWS OF THE PROPOSED DESIGN.

 

 

IRVING ST.  DESIGN

Irving Steet, San Mateo sketch up model: Design Development

Irving Steet, San Mateo sketch up model: Design Development

Construction begins

Construction begins

The finished product

The finished product

    

  

BROMPTON AVE. DESIGN

Brompton Ave. initial design stage, Revit kitchen model

Brompton Ave. initial design stage, Revit kitchen model

Brompton finished kitchen view

Brompton finished kitchen view

 

 

 

 

LAIDLEY ST. DESIGN

Laidely St. Revit model: Design Development

Laidely St. Revit model: Design Development

Before

Before

The finished product

The finished product

 

 

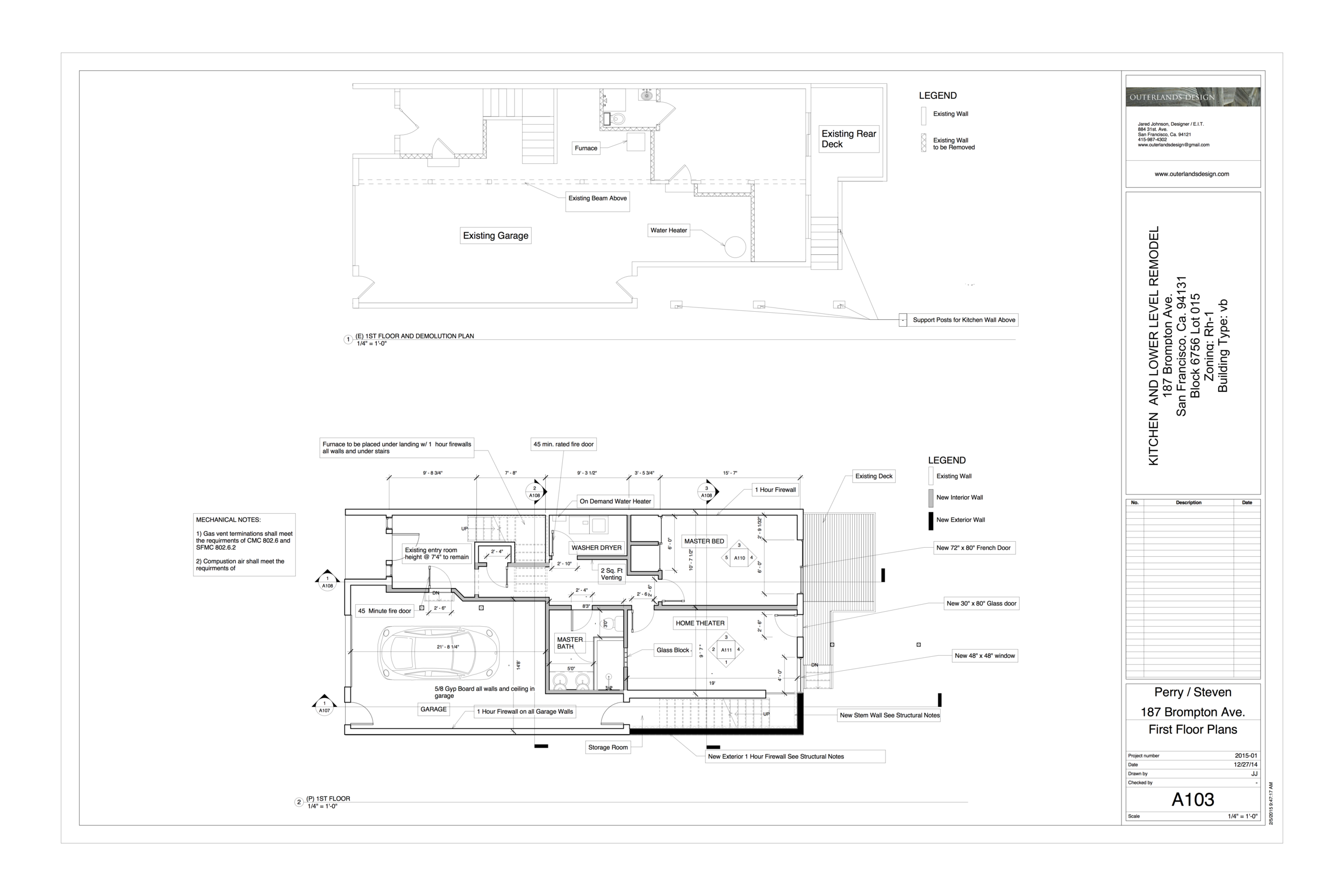
CONSTRUCTION DOCUMENTS:   THE THIRD PHASE IN THE DESIGN PROCESS

A WORKING PLAN SET IS CREATED WITH THE INFORMATION NECESSARY TO CONSTRUCT THE DESIGN IN COMPLIANCE WITH CURRENT BUILDING CODES.  THE PLAN SET IS PUT INTO THE PROPER FORMAT TO BE SUBMITTED TO LOCAL BUILDING AND PLANNING DEPARTMENTS.  THE BUILDING DEPARTMENT TYPICALLY REQUIRES FLOOR PLANS FOR EACH LEVEL OF THE BUILDING, THE BUILDING'S EXTERIOR ELEVATIONS AND A CROSS SECTIONAL ELEVATION LOOKING THROUGH THE BUILDING.    

Construction document format with dimensions and building information

Construction document format with dimensions and building information

A first floor plan page from a construction set

A first floor plan page from a construction set